For Sale
完塚貸家
成約
牛久駅
マンション・アパート・一戸建














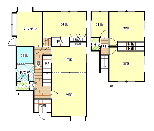
【賃貸:貸家】牛久市小坂町 4LDK
¥55,000
牛久市小坂町 4LDK 賃料55,000円 1階部分リフォームにより綺麗な内装となっております♪・1階トイレ新品・洗面化粧台新品・1階エアコン新品1台付き・TVモニター付きインターホン♪・広めのお庭もついてます♪
| 価格 | 55,000円 | 敷金 | 55,000円 |
| 礼金 | 0円 | 管理費・共益費 | 0円 |
| 所在地 | 牛久市小坂町1963-38 | 交通 | 牛久駅 約6km |
| 間取 | 4LDK | 間取詳細 | |
| 所在階数 | 2階建て | バルコニー向 | 東 |
| 駐車場 | 1台込み | 構造 | 木造 |
| 築年月日 | 1977年 | 面積 | 延べ床:113.19㎡ |
| 学区(小) | 学区(中) | ||
| 現状 | 空室 | 入居時期 | 相談 |
| 火災保険 | 18,000円 | 保証会社 | 要保証会社加入 |
| 取引態様 | 専任 | 駐車場 | 1台込み |
| 設備・条件 | 上水道 浄化槽 プロパンガス | ||
Contact
お問合せ
